oPEN Day at the Signal Box
We are holding a ‘Pre-refurbishment’ Open Day at the Signal Box on Sunday 8th of March from 10.00-1.00pm. This will offer a chance for the local community to see the signal box as is was left, after the last signal operator left in 2018.
The photos below show the site clearance work carried out by volunteers in October 2025 at the Signal Box.
Community rallies round to save heritage signal box
Hebden Bridge’s Victorian signal box, disused since 2018, is set to be looked after as a community-run heritage feature for the town. Following several years of negotiations with Network Rail, we are delighted to report that Calder Valley Community Land Trust has now acquired the lease to the building. The CLT’s charitable objects permit us to hold key public buildings on behalf of the community, and the CLT already holds the Fielden Hall community centre in Todmorden.
The signal box dates back to the days of the Lancashire and Yorkshire Railway, and still has the original L&Y signal lever frame in place where it was installed in 1891. The building has been empty since the signalling was modernised in 2018 and has suffered low-level vandalism. The importance of the building has been recognised in the grade II listing which it has received from Historic England.
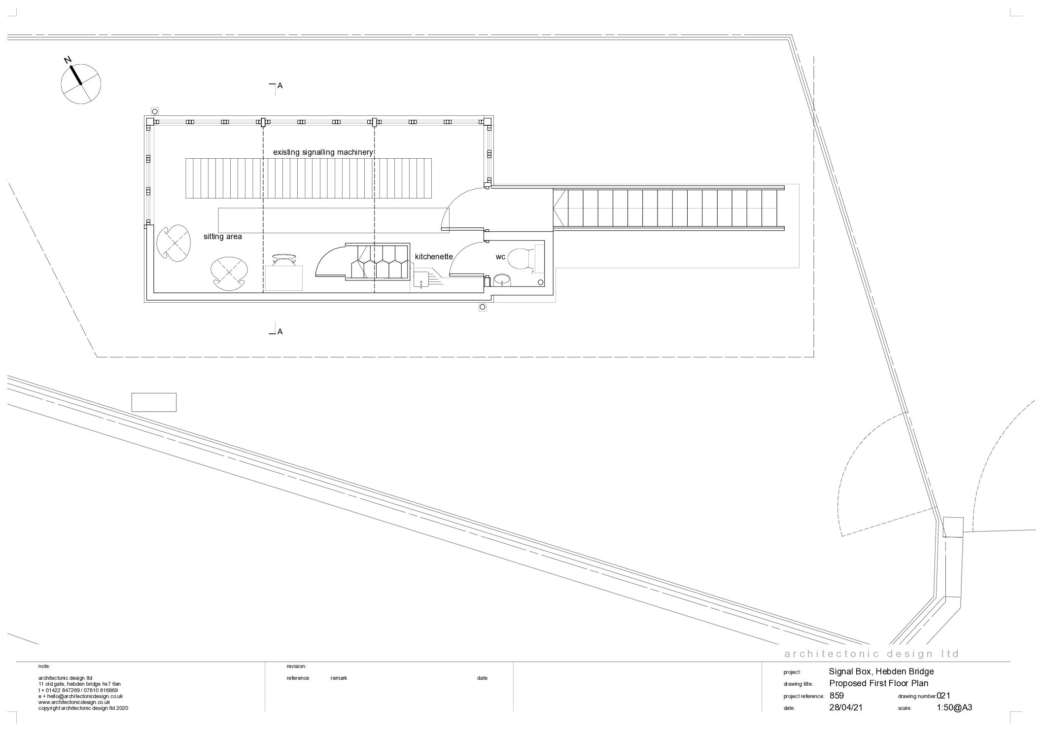
Under the proposals, Calder Valley Community Land Trust will oversee the restoration of the interior of the box. Upstairs will become a heritage centre, celebrating the importance of the history of railways in the Calder Valley and explaining how railway signalling operates to keep train passengers safe. Among other things, a computer simulation will be installed, allowing visitors the virtual experience of using the existing signal levers to ‘take’ a ‘train’ through the Hebden Bridge section of track. A newly established Hebden Bridge Signal Box Heritage Group has been established to work with the CLT on the heritage centre plans.

The view from upstairs
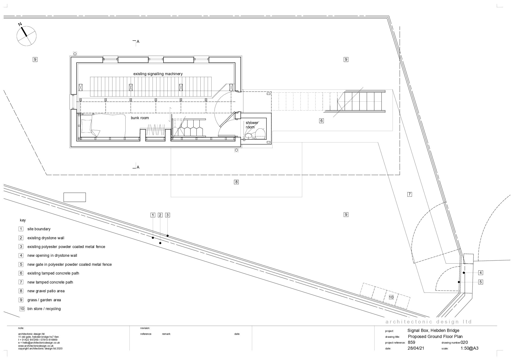
The downstairs of the signal box meanwhile will be converted into a quirky holiday let!
The CLT has been working hard to obtain grant funding for this innovative project. Further information, and the date of the first public open day for the signal box, will be available very shortly.
An interesting short video of Hebden Bridge signal box, when it was in operation, has been produced by the Signalling Record Society and is available for viewing here.
If you’re interested in helping on this exciting project, or have suggestions for the heritage centre, please email us at info@caldervalleyclt.org.uk.
There’s a good webpage article in the Yorkshire Post (also run in the Hebden Bridge Times) about our project (including a video). You can read it/see it here.


